neem contact op
  • werkwijzen

    schetsontwerp/voorlopig ontwerp

  • in deze fase van de voorbereiding ontstaan vaak de vastomlijnde programma's van eisen (wat gaan we bouwen), neergelegd in de eerste verkennende (hand)schetsen, 3d-schetsen en/of fotomontages.
  • bepalende details worden iets verder uitgewerkt, alternatieven en bruikbaarheid afgewogen.
  • De schaal waarop gewerkt wordt kan varieren van de deurgreep tot het omringende landschap.
  • alle stukken ten dienste aan het overleg tussen u en mij en om een afgewogen vervolgstap te kiezen.
  • terug>

detailstudie


...een eigen draai aan een kleine trap...
trap

indelingsschets


...handwerk op het bureau...
interieurschets

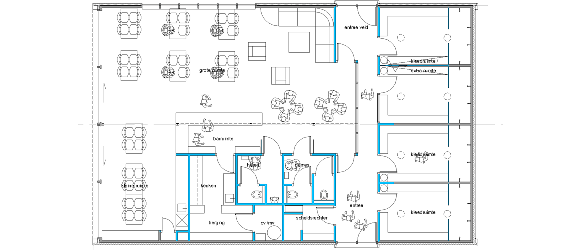
schetsontwerp


...de plattegronden worden inzichtelijk gemaakt...
schetsontwerp

alternatieven


...gelijkwaardige oplossingen ter overweging...
alternatieven

voorlopig ontwerp


...strakke lijnen de eerste maten...
voorlopig ontwerp

ruimtelijke schets


...voor het juiste gevoel, een schets met diepte...
ruimtelijke weergave

impressie


...sfeer en bijzondere kwaliteiten...
interieurimpressie

gevelontwerp


...een eerste verkennende schets...
gevelontwerp

doorsnedeschets


...simpele plaatjes met inzicht in de bruikbaarheid...
doorsneden

tuininrichting


...hoe is de relatie met het interieur ?...
tuin

omgevingsrelatie


...hoe ligt het plan in de omgeving (zon, uitzicht, privacy) ?...
relatie met omgeving

gebiedsontwikkeling


...eerst een stip op de horizon...
gebiedsontwikkeling